Hôm nay, AVI Việt Nam sẽ giới thiệu đến các bạn mẫu thiết kế biệt thự 2 tầng với kiến trúc mái thái mang phong cách tân cổ điển tuyệt đẹp mà AVI đã triển khai thiết kế cho gia đình chú Hải sống tại Bình Xuyên, Vĩnh Phúc. Biệt thự với kiến trúc 2 tầng – tầng đầu tiên là 1 phòng khách, 1 phòng bếp ăn, 2 phòng ngủ, 1 phòng thờ và 1 vệ sinh chung. Tầng còn lại với 2 phòng ngủ, 1 không gian sảnh tầng để trống, 1 phòng giải trí và 1 khu giặt phơi đồ. Chúng ta cùng tìm hiểu chi tiết và chiêm ngưỡng vẻ đẹp của mẫu thiết kế biệt thự này thông qua những thông tin và hình ảnh trực quan bên dưới nhé!
Nội dung chính
Thông tin biệt thự 2 tầng tân cổ điển KT18081
| Mã công trình: KT18081 | |
| Chủ đầu tư: chú Hải | Địa điểm: Bình Xuyên – Vĩnh Phúc |
| Số tầng: 2 tầng | Mặt tiền: 14m x 14m |
| Đơn vị thực hiện: Avi Việt Nam | Năm thực hiện: 2018 |
| Loại thiết kế: Biệt thự 2 tầng, Biệt thự tân cổ điển, Biệt thự mái thái | |
| Công năng:
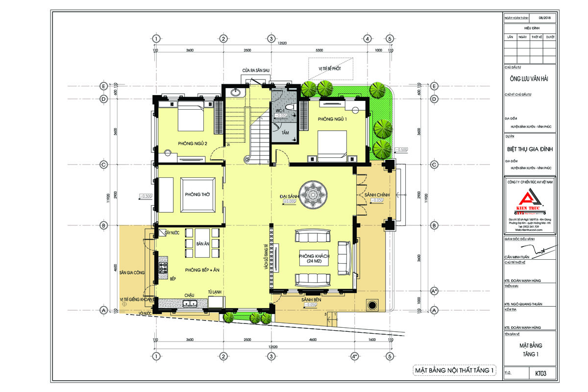
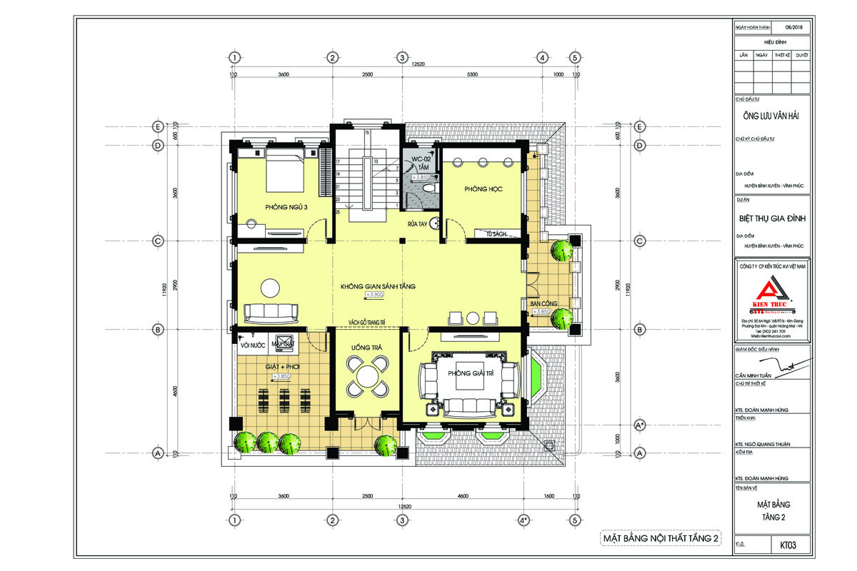
Tầng 1: phòng khách, phòng bếp ăn, 2 phòng ngủ, phòng thờ, 1 vệ sinh chung Tầng 2: 2 phòng ngủ, không gian sảnh tầng để trống, phòng giải trí, khu giặt phơi đồ |
|
| Tổng diện tích: 365m2
Tầng 1: 170m2 nhà chính + 20m2 sảnh và hiên trước nhà Tầng 2: 140m2 + 10m2 ban công sảnh chính + 25m2 sân giặt phơi |
|
Hình ảnh 3D mẫu biệt thự 2 tầng tân cổ điển KT18081


Mặt bằng công trình biệt thự KT18081
Mặt bằng nội thất tầng 1

Mặt bằng nội thất tầng 2

Gia đình chú Hải sống tại Bình Xuyên, Vĩnh Phúc cảm thấy rất hài lòng với bản thiết kế cuối mà Kiến Trúc AVI đã bàn giao. Còn đối với bạn, sau khi xem và đọc nội dung bài viết, bạn đã có cảm nhận gì về mẫu thiết kế trên? Bạn đang có ý tưởng và muốn có bản thiết kế dành riêng cho ngôi nhà của mình? Hay bạn đang cần một đội ngũ kiến trúc sư chuyên nghiệp giúp đỡ bạn có thể thực hiện việc đó? Hãy liên hệ với AVI Việt Nam để được tư vấn và hỗ trợ một cách tận tâm nhất từ những kiến trúc sư có chuyên môn cao. Thân mến!

