Nội dung chính
Thông tin mẫu biệt thự 4 tầng tân cổ điển châu Âu KT25010
| Mã công trình: KT25010 | |
| Chủ đầu tư: ….. | Địa điểm: …………… |
| Số tầng: 4 tầng | Mặt tiền: 15m x 15m |
| Đơn vị thực hiện: Avi Việt Nam | Năm thực hiện: 2025 |
| Loại thiết kế: Biệt thự 4 tầng, Biệt thự tân cổ điển, | |
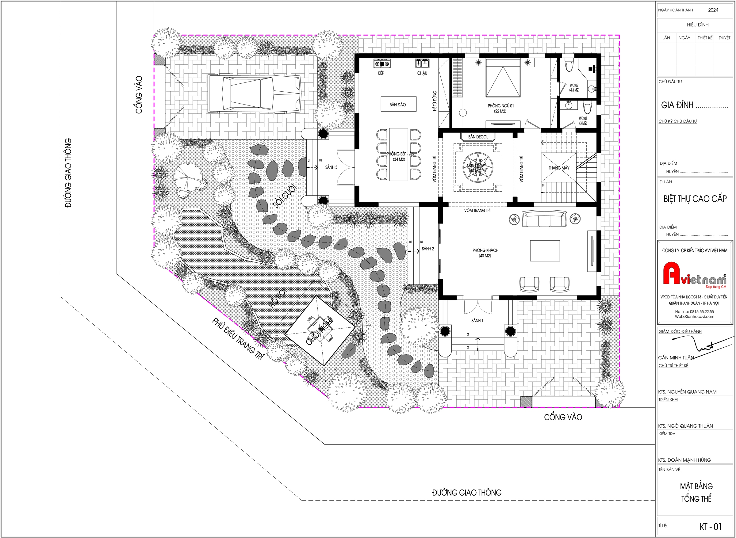
| Công năng:
Tầng 1: Phòng khách, phòng bếp – ăn, phòng ngủ khép kín, vệ sinh chung Tầng 2: Phòng ngủ master 1, 02 phòng ngủ + vệ sinh chung, không gian thông tầng Tầng 3: 03 phòng ngủ khép kín Tầng 4: Phòng thờ, phòng giải trí, phòng kho, phòng giặt phơi… Tổng diện tích: 600m2 |
|
Mặt bằng biệt thự 4 tầng tân cổ điển châu Âu KT25010

Phối cảnh 3D biệt thự 4 tầng tân cổ điển châu Âu KT25010








Công ty CP kiến trúc Avi Việt Nam cung cấp các dịch vụ:
- Thiết kế kiến trúc.
- Thiết kế nội thất.
- Thi công trọn gói ngoại thất và nội thất.
- Giám sát thi công xây dựng công trình.
Nếu các bạn muốn sở hữu cho riêng mình một căn biệt thự với THIẾT KẾ ĐẲNG CẤP thì hãy liên hệ ngay tới số hotline của kiến trúc Avi Việt Nam là 0815.55.22.55 để được các chuyên gia của chúng tôi tư vấn cụ thể.
Thân mến!


