Nội dung chính
Thông tin biệt thự 2 tầng hiện đại mái Nhật KT24042
| Mã công trình: KT24042 | |
| Chủ đầu tư: Gia đình chú Quyết | Địa điểm: Quốc Oai – Hà Nội |
| Số tầng: 2 tầng | Mặt tiền: 12m x 16m |
| Đơn vị thực hiện: Avi Việt Nam | Năm thực hiện: 2024 |
| Loại thiết kế: Biệt thự 2 tầng, biệt thự tân cổ điển | |
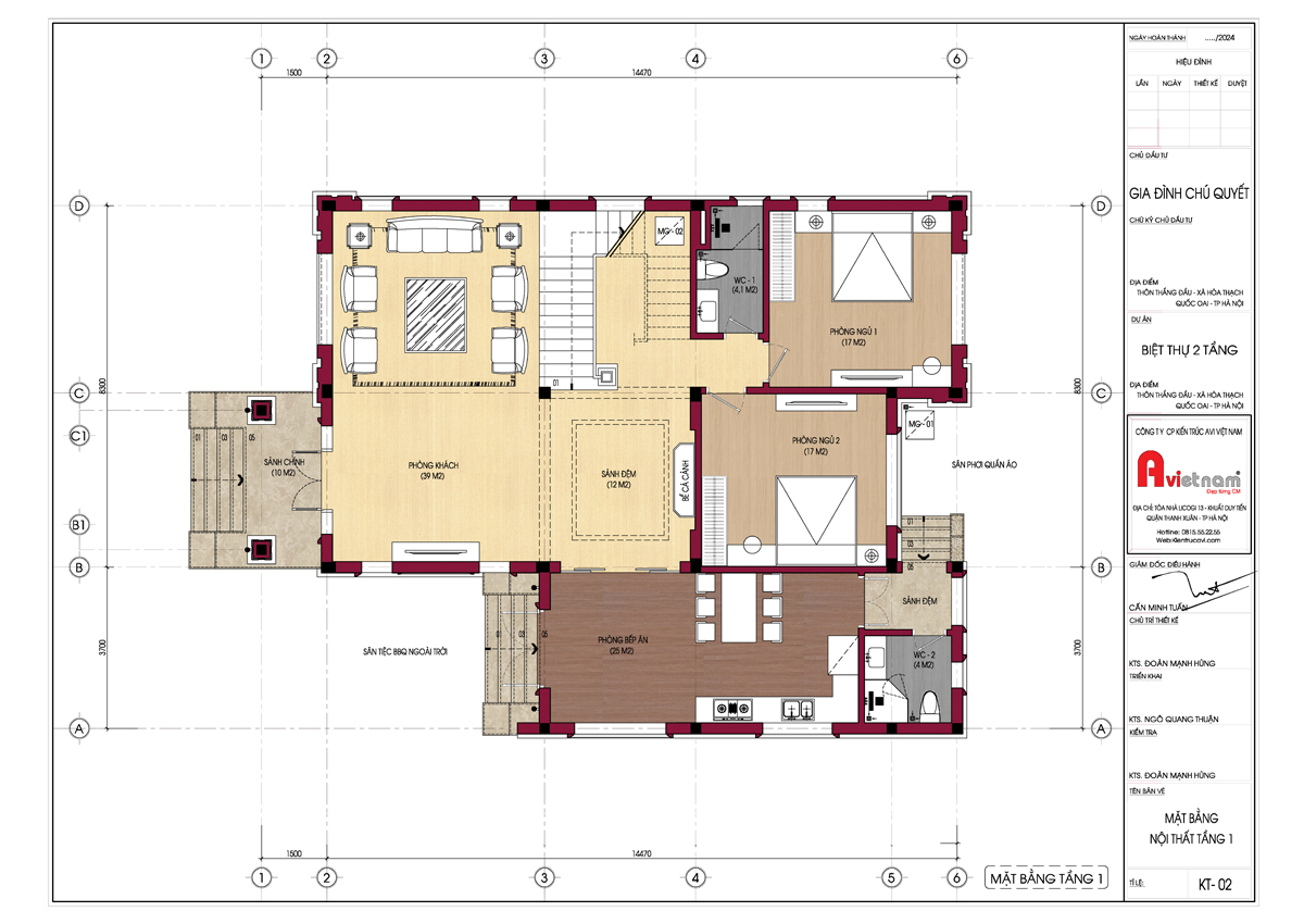
| Công năng:
Tầng 1: Phòng khách, 02 phòng ngủ, vệ sinh chung, nhà bếp + vệ sinh Tầng 2: Phòng thờ + phòng đọc sách, 02 phòng ngủ, vệ sinh chung Tổng diện tích: 300m2 |
|
Công năng biệt thự 2 tầng hiện đại mái Nhật KT24042

Giải pháp 3D biệt thự 2 tầng hiện đại mái Nhật KT24042







Công ty CP kiến trúc Avi Việt Nam cung cấp các dịch vụ:
- Thiết kế kiến trúc.
- Thiết kế nội thất.
- Thi công trọn gói ngoại thất và nội thất.
- Giám sát thi công xây dựng công trình.
Nếu các bạn muốn sở hữu cho riêng mình một căn biệt thự với THIẾT KẾ ĐẲNG CẤP thì hãy liên hệ ngay tới số hotline của kiến trúc Avi Việt Nam là 0815.55.22.55 để được các chuyên gia của chúng tôi tư vấn cụ thể.
Thân mến!


