Nội dung chính
Thông tin biệt thự 2 tầng mái Nhật 04 phòng ngủ KT24010
| Mã công trình: KT24010 | |
| Chủ đầu tư: anh Tuấn | Địa điểm: …… |
| Số tầng: 2 tầng | Mặt tiền: 9,6m x 13,85m |
| Đơn vị thực hiện: Avi Việt Nam | Năm thực hiện: 2024 |
| Loại thiết kế: Biệt thự 2 tầng, biệt thự tân cổ điển | |
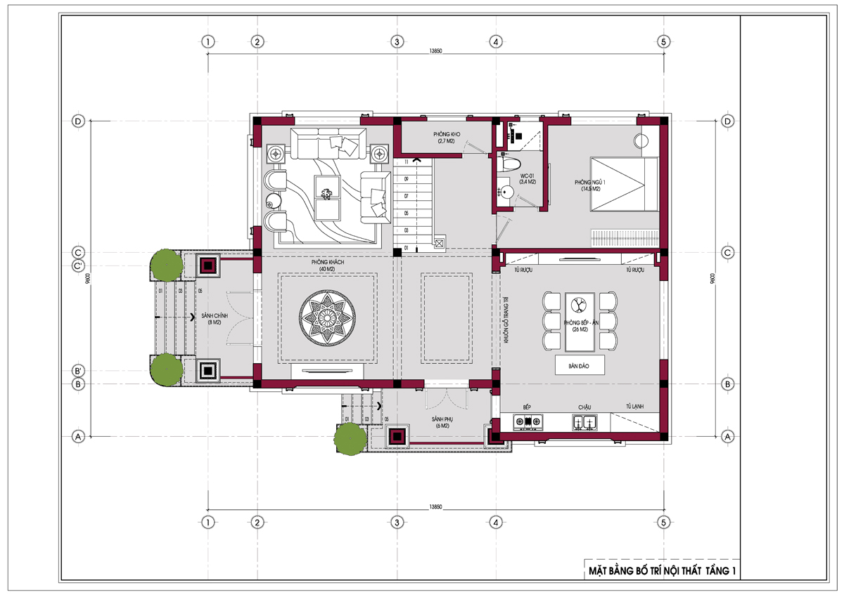
| Công năng:
Tầng 1: Phòng khách, phòng bếp + phòng ăn, phòng ngủ khép kín, wc chung ngoài nhà Tầng 2: Phòng ngủ master, 02 phòng ngủ con, phòng thờ, vệ sinh chung Tổng diện tích: 300m2 |
|
Mặt bằng biệt thự 2 tầng mái nhật 04 phòng ngủ KT24010

Giải pháp 3D biệt thự 2 tầng mái nhật KT24010




Công ty CP kiến trúc Avi Việt Nam cung cấp các dịch vụ:
- Thiết kế kiến trúc.
- Thiết kế nội thất.
- Thi công trọn gói ngoại thất và nội thất.
- Giám sát thi công xây dựng công trình.
Nếu các bạn muốn sở hữu cho riêng mình một căn biệt thự với THIẾT KẾ ĐẲNG CẤP thì hãy liên hệ ngay tới số hotline của kiến trúc Avi Việt Nam là 0815.55.22.55 để được các chuyên gia của chúng tôi tư vấn cụ thể.
Thân mến!


